Proyectos | Residenciales
VIVIENDA LAS YATAY  
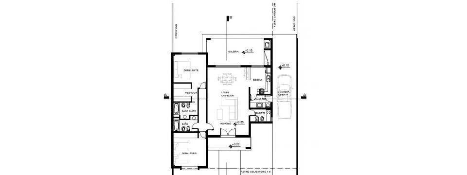
Descripción del proyecto:

Proyecto de vivenda Plan PROCREAR ubicada en Oro Verde.

Superficie cubierta 121 m2. Superficie semicubierta 15 m2.